Building housing, apartments, spaces for people to live is the key issue in Ireland. Populations have risen dramatically and new dwellings are needed everywhere. This is striking in a country that has effectively suburbanized its rural landscape the last twenty years, making it seem full without being usefully dense.
Despite structural delay in bureaucratic indecision, erratic planning, and constantly changing legislation, houses are starting to be built. Most of what is proposed is designed to solid environmental standards but, in the main, pretends to little functional complexity ( for instance integrating families and older people in single schemes ) or architectural ambition. This is a pity in a city like Dublin which, for all its faults, offers a great variety of ingenious domestic typologies - Ireland retains a subliminal fear of real urban density.
- Killiney
- Palmerstown
- Mountainview Court
The Croke Villas housing project, the One Up Two Down house in Phibsboro as well as extensions to houses like Hidden Garden Floating Plane, Jigsaw and Silent Room - are all mediations of space between courts and gardens. They reinforce the given plan of the city with new (often inverted) ways of living within the plot.
Palmerstown and Killiney housing - a mixed use commercial and a residential scheme - form their own geographies. Like Mountainview Court - a radical investigation of inner city urban living - they are planned around new approaches to public and private open space.
- Thapar University Student Residences One
- Thapar University Student Residences Two
- Printing House Square
- UCC
These projects are all about new kinds of spaces and ways of city living. Student housing schemes are intense, speeded-up living in groups, a mix of people and use. Printing House Square in TCD, Thapar University Housing and Crows Nest for UCC are planned to be PLACES; all are formed around ideas of sociability; all stand on a plinth of health and sports-related functions which enrich the mix. Printing House Square is a courtyard but also a new College entrance gate.
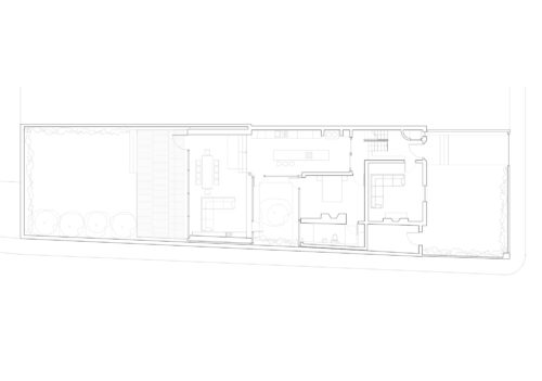
- One Up Two Down
- ground floor plan
- Hidden Garden Floating Plane
- Z Square House
Grafton Street, Mountjoy Square and Fenian Street work with Protected Structures, using one part to make the other function. Restoring ancient fabric, adding new sections & cutting new circulation, they create dense residential use which is a mix of old and contemporary space.
- Docklands
- Dorset Street
- Fenian Street
- Fenian Street
- Grafton Street
- Grafton Street